Back To Top

Listings

16 IDA STREET, St. Catharines (E. Chester)

$399,9002 Beds2 Bathrooms
Property Overview
Bedrooms: 2
Bathrooms: 2 + 1 Partial
Status: For sale
Address: 16 IDA STREET, St. Catharines (E. Chester), L2R3X4
MLS: X12746602
Style: Bungalow
Type: Single Family / Freehold
Building Type: House
Lot Size: 33 x 163.6 FT
Heating Fuel: Forced air, Natural gas
Heating Type: N/A
Cooling: None
Water: Municipal water
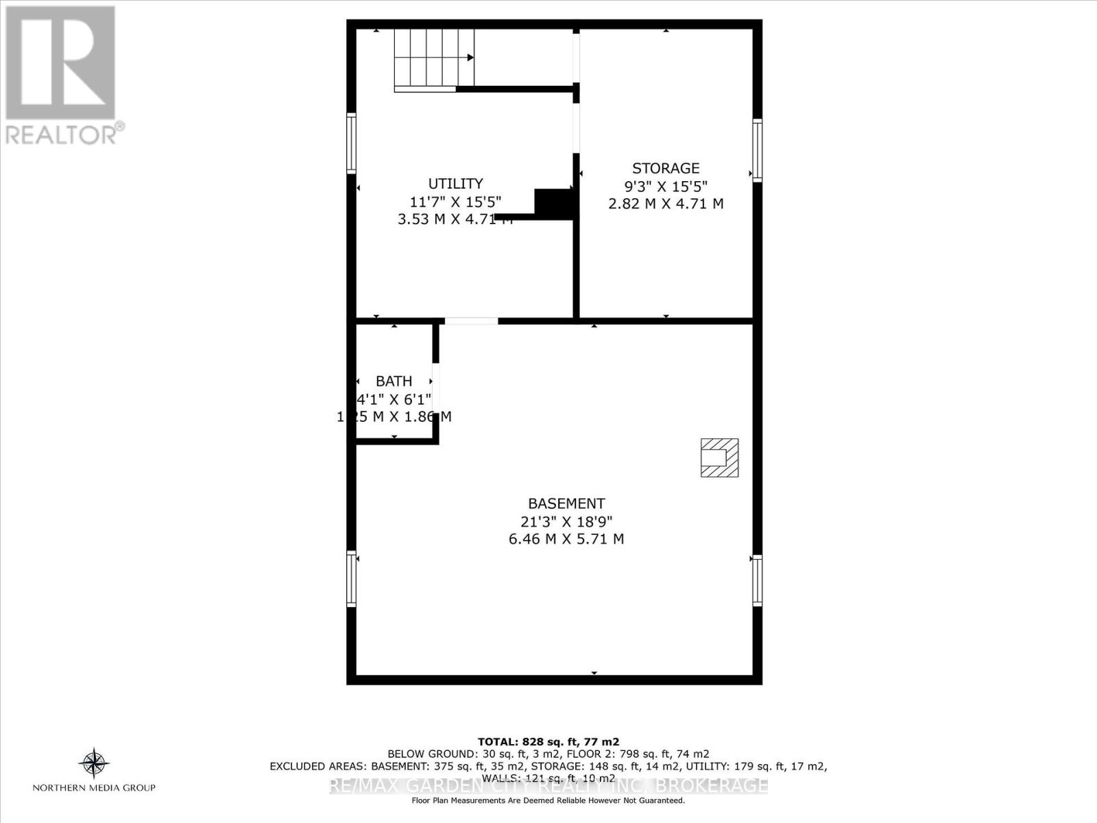
Floor Space: 700 - 1100 sqft
Lot Size: 33 x 163.6 FT
Exterior: Stucco, Concrete Block
Basement Type: Unfinished, N/A
Basement Development: N/A
Agency: Courtesy of RE/MAX GARDEN CITY REALTY INC, BROKERAGE
Description
This charming, updated bungalow is located on a quiet street and is truly a nature lover's paradise, offering privacy and beautifully established, exotic perennial gardens filled with flowering bushes and trees. The front porch overlooks a lovely tree with red berries in winter and blossoms in spring, creating a warm and welcoming first impression. Inside, you'll enjoy an open-concept kitchen with included fridge, stove, microwave, and dishwasher. The dining area flows seamlessly into a spacious living room, creating a bright and inviting main living space. There are two bedrooms on the main floor, including a spacious primary bedroom with a fantastic walk-in closet. The updated modern four-piece bathroom features ceramic tile. The basement offers excellent additional living space with a room ready to be finished to your liking-perfect as a recreation room-with a wood stove to cozy up to. Hardwood is included for burning, with additional hardwood stored in the backyard shed. There is also potential for a man cave or an extra bedroom for a teen, and the egress windows provide an important safety feature. The basement also includes a dedicated workshop with a workbench, ideal for hobbies or projects, along with a bright laundry area offering additional storage. The washer and dryer are included. Furnace and hot water tank are owned. Step outside to the extra-long backyard, a peaceful and private retreat featuring beautifully established perennial gardens, flowering bushes, and trees. Organic raised garden beds enhance the space, and the fully enclosed yard is perfect for a dog. Two decks provide ideal areas for relaxing or entertaining, with shady spots to enjoy on hot summer days. Conveniently located just half a block from a school and close to a church, transit, parks, and restaurants. Enjoy the beauty of nature and take delight in the gardens-this home is truly a special place. (id:10317)
Location
Karen McMullin

Request A Showing!

Get listings direct to your inbox? Sign up for
our newsletter!